Skip to content
Tel: 01772 301512
Tel: 01772 301512
Home
News
Our Developments
Your Developments
Land
Contact Us
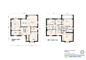
1060-PWA-HTB1 plans 2016-07-31 colour
Ventura Homes
Waterside
Checking...
Ouch! There was a server error.
Retry »
Sending message...
Spambot blocker question
6 + 7 =
Home
News
Our Developments
Your Developments
Land
Contact Us
WooCommerce not Found
Newsletter